大鰐町 Y様邸 リノベーション工事

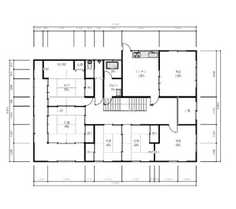
Before





リフォーム詳細
| リフォーム内容 | 既存住宅購入に伴う間取り変更、断熱改修、キッチンリフォーム、風呂リフォーム、トイレリフォーム工事 |
|---|---|
| 現場名 | 大鰐町 Y様邸 |
| ご要望 |
既存住宅をご購入されるお客様が内部をリフォームしたいとご来店いただきました。 ご家族様それぞれのご希望やライフスタイルに応じた間取りのご提案で、 ご家族様3人が安心して生活していただける空間に生まれ変わりました。 |
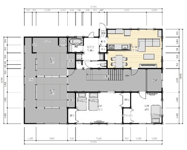
After











| リフォーム内容 | 既存住宅購入に伴う間取り変更、断熱改修、キッチンリフォーム、風呂リフォーム、トイレリフォーム工事 |
|---|---|
| 現場名 | 大鰐町 Y様邸 |
| ご要望 |
既存住宅をご購入されるお客様が内部をリフォームしたいとご来店いただきました。 ご家族様それぞれのご希望やライフスタイルに応じた間取りのご提案で、 ご家族様3人が安心して生活していただける空間に生まれ変わりました。 |




